


Pes orunlyk ýarym tirkeg
Pes tirkeg agyr ýük ulaglaryny, traktor ýük ulaglaryny, awtobuslary, agyr ýük ulaglaryny we ş.m. öz içine alýan ýörite ulaglary daşamak üçin ýörite dizaýn edilen we öndürilen; Demir ýol ulaglary, dag-magdan tehnikalary, tokaý hojalygy tehnikalary, gurluşyk tehnikalary, şol sanda ekskawatorlar, buldozerler, ýükleýjiler, asfalt örtükler, kranlar we ş.m. Pes tirkegler adatça traktoryň tirkeg eýerine birikdirilmek üçin öň tarapynda gaz boýny bolan içburun şöhle çarçuwasyny ulanýar, #50 ýa-da #90 ýaly çekiş ştifti isleg boýunça ulanylýar. Agyrlyk merkeziniň pesligi, has gowy durnuklylyk we howpsuzlyk, şeýle hem daşamak ukybynyň ýokarlanmagy sebäpli, bularyň hemmesi Pes tirkegi agyr ýük daşamak üçin has amatly edýär.
Arka dyrmaşýan basgançakly ýörite dizaýny sebäpli agyr enjamlar, esasanam gurluşyk tehnikalary arka tarapdan ýüklenýär. Ýükleri aňsatlyk bilen, howpsuzlyk bilen we ýokary çeýelik bilen daşamak isleýänler üçin, biz CS TRUCKS tarapyndan öndürilen pes derejeli ýarym tirkegler bu artykmaçlyklary köp konfigurasiýalarda müşderiniň isleglerine laýyk gelýän görnüşde birleşdirýäris.
Modele esaslanyp: 2 okly pes tirkegli ýarym tirkeg, 3 okly pes tirkegli ýarym tirkeg, 4 okly pes tirkegli ýarym tirkeg, 5 okly pes tirkegli ýarym tirkeg we ş.m.
Kuwwatyna esaslanyp: 20 tonna, 30 tonna, 40 tonna, 50 tonna, 60 tonna, 80 tonna, 120 tonna, 150 tonna.
| Model | Ok ulgamy | Ýüklemek ukyby | Umumy ölçeg | Programma |
| CS9280TD | 2 | 20 tonna | 8200x2500x3000 mm | Ýörite ýük awtoulaglary, awtobuslar |
| CS9292TD | 2 | 25 tonna | 10000x2500x3150 mm | Agyr gurluşyk enjamlary |
| CS9330TD | 3 | 30 tonna | 10000x2500x3150 mm | Agyr enjamlar, demir ýol ulaglary |
| CS9402TD | 3 | 50 tonna | 11500x2500x3500 mm | Ekskawator, Buldozer |
| CS9405TD | 3 | 60 tonna | 13500x2500x3400 mm | Elektrik stansiýasynyň enjamlary |
| CS9408TD | 4 | 80 tonna | 13000x2500x3500 mm | Ähli uly obýektler |
| CS9450TD | 4 | 100 tonna | 13750x2500x3600 mm | Gaty uzyn, gaty uly enjamlar |
| CS9458TD | 5 | 150 tonna | 13750x2500x3800 mm | Agyr enjamlar we maşynlar |
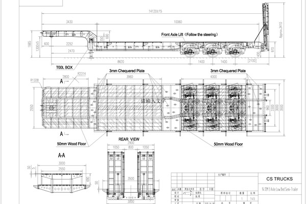
Siziň zerurlyklaryňyza laýyk gelýän ýöriteleşdirilen çyzgylar
“CS TRUCKS” müşderilere iň gowy tekiz platformaly ýarym tirkegli awtoulag çözgütlerini hödürlemäge borçlanýar. Biziň diňe önümçilik prosesinde professional tehniki çözgütleri hödürlemän, eýsem müşderilere satuwdan öňki maslahat beriş we satuwdan soňky tehniki hyzmatlary hem hödürleýän professional tehniki toparymyz bar.
Häzirki zaman önümçilik liniýalary, akylly önümçilik enjamlary
“CS TRUCKS” häzirki wagtda ýokary takyklykly kebşirleme robotlary, CNC kesiji enjamlar, egilme we şekillendirme enjamlary, ulagyň işini synagdan geçirmek liniýalary we beýleki esasy enjamlar ýaly 300-den gowrak öňdebaryjy ýörite ulag öndürmek we synagdan geçirmek enjamlaryna eýedir. Esasy bölekleri gaýtadan işlemekden ulagy synagdan geçirmäge çenli, önümçiligiň takyklygyny we önümiň hilini üpjün etmek üçin tutuş prosesde professional enjamlar ulanylýar.
Pes düşekli ýarym tirkegli toplu eltip beriş displeýi
CS TRUCKS-yň ähli pes göwrümli ýarym tirkegleri ýokary berklikli polatdan ýasalýar, örän güýçli ýük göterijilik ukybyna we agyr ýük daşamak, gurluşyk tehnikalaryny daşamak we logistika hyzmatlary ýaly köp ssenariýaly zerurlyklara çeýe uýgunlaşmaga eýedir. Öňdebaryjy önümçilik we synag enjamlaryna, şeýle hem professional önümçilik liniýalaryna daýanyp, biz ýyllyk 20,000 birlik durnukly önümçilik kuwwatyna ýetdik. Önümlerimiz Günorta Aziýa, Afrika we Günorta Afrika ýaly 50-den gowrak ýurda we sebitlere eksport edilýär we müşderileriň giňden ykrar etmegine mynasyp boldy.
Habar galdyryň
Wechat/Whatsapp-a skanirle :